สายพานลำเลียงสายพานขนาดเล็ก HCII
Cat:สายพานลำเลียง
ผ่านความร่วมมือระหว่างวงล้อนำและรางนำเข็มขัดสามารถดึงและชี้นำให้วิ่งได้ คุณสมบัติ: ราคาต่ำโหลดเบาและ...
โครงสร้างขั้นสูงประสิทธิภาพที่มีคุณภาพสูงใช้งานง่ายความน่าเชื่อถือและความทนทานสูง
เครื่องหมุนสายพานเลี้ยวเป็นอุปกรณ์ลำเลียงทั่วไปส่วนใหญ่ใช้ในการถ่ายโอนวัสดุจากสายพานลำเลียงสายพานหนึ่งไปยังอีก 90 องศาหรือ 180 องศาสายพานลำเลียงสายพานย้อนกลับ มันประกอบด้วยส่วนประกอบต่าง ๆ เช่นเข็มขัดเฟรมลูกกลิ้งไดรฟ์ลูกกลิ้งย้อนกลับพาเลทที่รับน้ำหนักลูกกลิ้งกลับและอุปกรณ์ปรับความตึง วัสดุของสายพานลำเลียงของเครื่องหมุนสายพานรวมถึงวัสดุต่าง ๆ เช่น PVC, PU, PVK ฯลฯ นอกเหนือจากการใช้สำหรับการถ่ายทอดวัสดุธรรมดาแล้วนอกจากนี้ยังสามารถตอบสนองการขนส่งของวัสดุที่มีข้อกำหนดพิเศษเช่นความต้านทานน้ำมันกรดและความต้านทานการกัดกร่อนของอัลคาไล

ผ่านความร่วมมือระหว่างวงล้อนำและรางนำเข็มขัดสามารถดึงและชี้นำให้วิ่งได้ คุณสมบัติ: ราคาต่ำโหลดเบาและ...
ผ่านความร่วมมือระหว่างวงล้อนำและรางนำเข็มขัดสามารถดึงและชี้นำให้วิ่งได้
คุณสมบัติ: ราคาต่ำโหลดเบาและความเร็วต่ำ
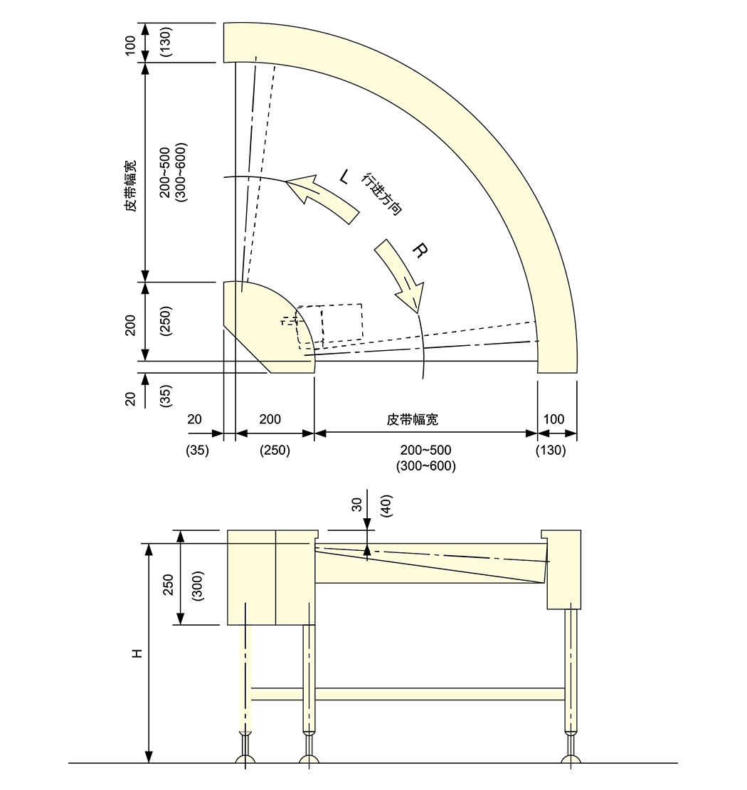
มิติมาตรฐาน
HCII-S
| ความกว้างของเข็มขัด | 200 | 300 | 400 | 500 |
| ความกว้างของสายพานลำเลียง | 520 | 620 | 720 | 820 |
| มุม | 90 | พลังงานมอเตอร์ | 90W、 120W、 200W |
| ความสูง | สูง 270 ถึง 1100 ฟุตด้วย | พลัง | AC100V (เฟสเดี่ยว) · AC200V (เฟสเดี่ยว) · AC200V (สามเฟส) |
| ความเร็ว | ความเร็วคงที่/ตัวแปร | เข็มขัด | เข็มขัดโพลียูรีเทน |
| ความสามารถ | 10kg/set (เมื่อโหลดกระจายในแนวนอน) |
ในฐานะที่เป็นสินค้ารูปร่างของถุงโปรดเพิ่มขึ้นเป็น 40% ของข้อมูลความสามารถในการลดลง
HCII-M
| ความกว้างของเข็มขัด | 300 | 400 | 500 | 600 |
| ความกว้างของสายพานลำเลียง | 680 | 780 | 880 | 980 |
| มุม | 90 | พลังงานมอเตอร์ | 200W、 400W |
| ความสูง | โปรดระบุขาเป็นทางเลือก | พลัง | AC200V (สามเฟส) |
| ความเร็ว | ความเร็วคงที่ | เข็มขัด | เข็มขัดโพลียูรีเทน |
| ความสามารถ | 40kg/set (เมื่อโหลดกระจายในแนวนอน) |
ในฐานะที่เป็นสินค้ารูปร่างของถุงโปรดเพิ่มขึ้นเป็น 40% ของข้อมูลความสามารถในการลดลง
ความเร็วเข็มขัด HCII-S
| อัตราส่วน | ความเร็วไม่ | ความเร็วคงที่ 50/60 (Hz) (m/นาที) | ความเร็วไม่ | ความเร็วแปรปรวน 50/60 (HZX (M/นาที) |
| 1/180 | T1 | 16./1.9 | H1 | 0.11 ~ 2.1 |
| 1/2050 | T2 | 1.8/2.2 | H2 | 0.13 ~ 2.5 |
| 1/2020 | T3 | 2.3/2.8 | H3 | 0.16 ~ 3.1 |
| 1/90 | T4 | 3.1/3.7 | H4 | 0.21-4.2 |
| 1/75 | T5 | 3.8/4.5 | H5 | 0.25 ~ 5.0 |
| 1/60 | T6 | 4.7/5.6 | H6 | 0.31 ~ 6.2 |
| 1/50 | T7 | 5.6/6.7 | H7 | 0.38 ~ 7.5 |
| 1/36 | T8 | 7.8/9.4 | H8 | 0.52-10.4 |
| 1/30 | T9 | 9.3/11.2 | H9 | 0.63 ~ 12.5 |
| 1/25 | T10 | 11.3/13.5 | H10 | 0.75 ~ 15.0 |
| 1/18 | T11 | 15.6/18.7 | H11 | 1.04 ~ 20.8 |
| 1/15 | T12 | 18.8/22.5 | H12 | 1.25 ~ 25.0 |
| 1/12.5 | T13 | 22.5/27.0 | H13 | 1.50 ~ 30.0 |
ความเร็วเข็มขัด HCII-M
| อัตราส่วน | ความเร็วไม่ | ความเร็วคงที่ 50/60 (Hz) (m/นาที) |
| 1/2020 | T1 | 15/18 |
| 1/90 | T2 | 20/24 |
การคำนวณความเร็วของความเร็วคงที่: หมุนความเร็ว 1500/1800rpm (50/60Hz), Driving Roller ф82.3, ประสิทธิภาพการขับขี่: 95%
การคำนวณความเร็วของความเร็วตัวแปร: หมุนความเร็ว 2000rpm (50; 60Hz), ลูกกลิ้งขับф82.3, ประสิทธิภาพการขับขี่: 95%
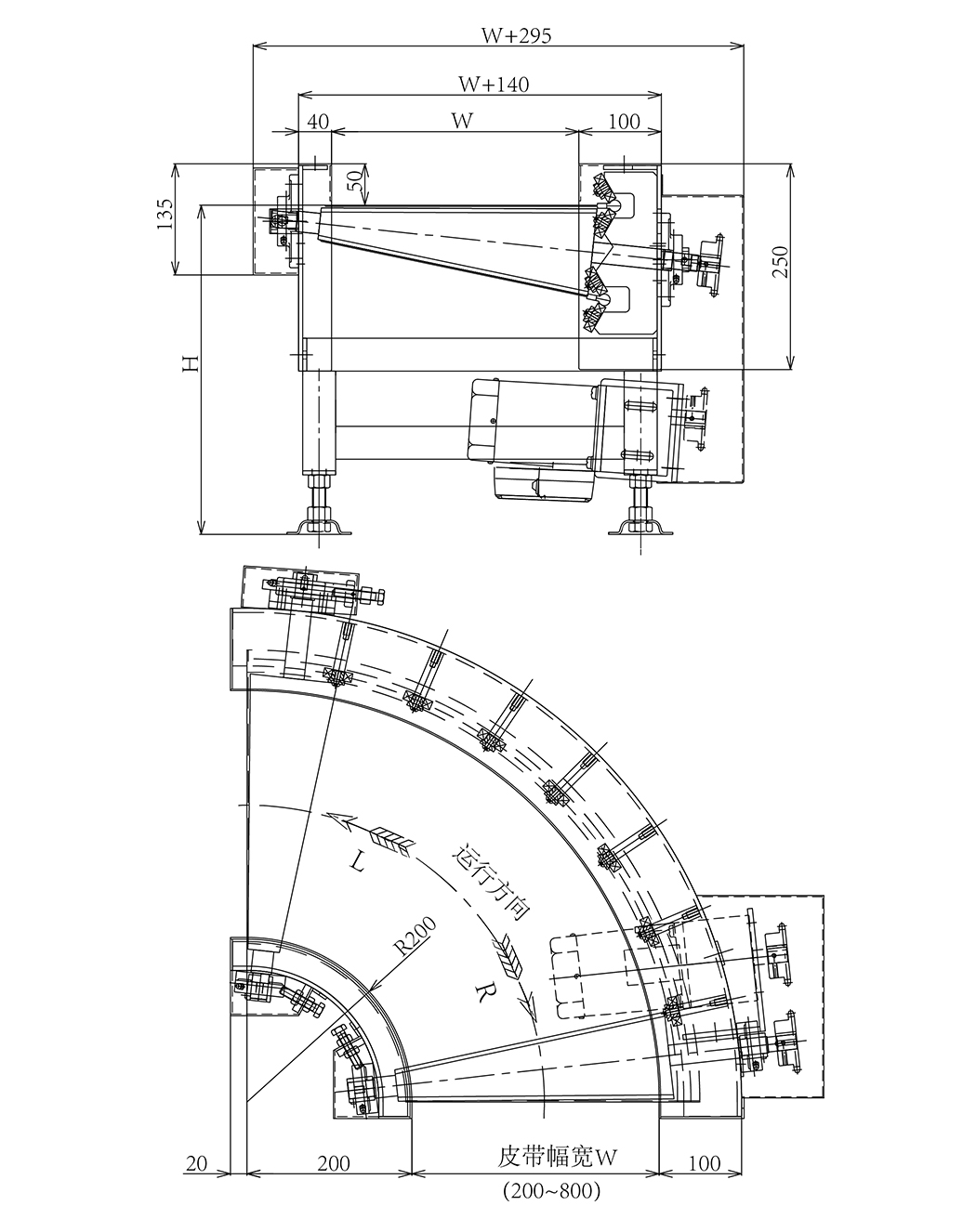
รูปวาด

ผ่านความร่วมมือระหว่างวงล้อนำและแถบมัคคุเทศก์เข็มขัดจะถูกดึงและชี้นำให้วิ่ง คุณสมบัติ: เสียงรบกวนต่ำ...
ผ่านความร่วมมือระหว่างวงล้อนำและแถบมัคคุเทศก์เข็มขัดจะถูกดึงและชี้นำให้วิ่ง
คุณสมบัติ: เสียงรบกวนต่ำความเร็วสูงและแรงเข็มขัด
มิติมาตรฐาน
| ความกว้างของเข็มขัด | 200 | 300 | 400 | 500 | 600 | 700 | 800 |
| ความกว้างของสายพานลำเลียง | 520 | 620 | 720 | 820 | 920 | 1020 | 1120 |
| มุม | 90 | พลังงานมอเตอร์ | 200W、 370W、 750W |
| ความสูง | สูง 380 ถึง 1100 ฟุตด้วย | พลัง | A (AC110V เฟสเดี่ยว) B (AC200V เฟสเดี่ยว) C (AC200V/380V สามเฟส) |
| ความเร็ว | ความเร็วคงที่ | เข็มขัด | เข็มขัดโพลียูรีเทน |
| ความสามารถ | 100kg/set (เมื่อโหลดกระจายในแนวนอน) |
ในฐานะที่เป็นสินค้ารูปร่างของถุงโปรดเพิ่มขึ้นเป็น 40% ของข้อมูลความสามารถในการลดลง
ความเร็วเข็มขัด
| อัตราส่วน | ความเร็วไม่ | ความเร็วคงที่ 50/60 (Hz) (m/นาที) | ความเร็วไม่ | ความเร็วแปรปรวน 50Hz (m/นาที) |
| 1/180 | T1 | 1.6/1.9 | H1 | 0.09-1.7 |
| 1/2050 | T2 | 1.9/2.3 | H2 | 0.1-2.1 |
| 1/2020 | T3 | 2.4/2.9 | H3 | 0.13-2.6 |
| 1/90 | T4 | 3.2/3.8 | H4 | 0.17-3.5 |
| 1/75 | T5 | 3.8/4.6 | H5 | 0.2-4.2 |
| 1/60 | T6 | 4.9/5.8 | H6 | 0.25-5.1 |
| 1/50 | T7 | 5.8/6.9 | H7 | 0.3-6.2 |
| 1/36 | T8 | 8/9.5 | H8 | 0.4 ~ 8.6 |
| 1/30 | T9 | 9.5/11.5 | H9 | 0.5-10.4 |
| 1/25 | T10 | 11.5/13.7 | H10 | 0.6-12.4 |
| 1/18 | T11 | 15.9/19 | H11 | 0.9-17.3 |
| 1/15 | T12 | 19.3/22.3 | H12 | 1 ~ 20.6 |
| 1/12.5 | T13 | 23/27.4 | H13 | 1.2-24.8 |
| 1/7.5 | T14 | 38.3/45.8 | H14 | 2.1-41.4 |
| 1/5 | T15 | 57.5/68.6 | H15 | 3.1-62 |
| 1/3.6 | T16 | 79.9/95.4 | H16 | 4.3-86.1 |
| 1/3 | T17 | 95.8/114.4 | H17 | 5.2-103.4 |
การคำนวณความเร็วของความเร็วคงที่: หมุนความเร็ว 1500/1800rpm (50/60Hz), Driving Roller ф82.3, ประสิทธิภาพการขับขี่: 95%
การคำนวณความเร็วของความเร็วตัวแปร: หมุนความเร็ว 2000rpm (50; 60Hz), ลูกกลิ้งขับф82.3, ประสิทธิภาพการขับขี่: 95%
รูปวาด

ผ่านความร่วมมือระหว่างห่วงโซ่และวงล้อนำเข็มขัดสามารถดึงและนำทางได้ คุณสมบัติ: โหลดหนักและความเร็วเร็...
ผ่านความร่วมมือระหว่างห่วงโซ่และวงล้อนำเข็มขัดสามารถดึงและนำทางได้
คุณสมบัติ: โหลดหนักและความเร็วเร็ว
มิติมาตรฐาน
| ความกว้างของเข็มขัด | 400 | 600 | 800 | 1000 | 1200 | 1400 | 1600 | 1800 |
| ความกว้างของสายพานลำเลียง | 525 | 725 | 925 | 1125 | 1325 | 1525 | 1725 | 1925 |
| มุม | 90 | พลังงานมอเตอร์ | 370W、 750W、 1.1kW、 1.5kW、 2.2kw |
| ความสูง | สูง 550 ถึง 2000 ฟุตด้วย | พลัง | A (AC110V เฟสเดี่ยว) B (AC200V เฟสเดี่ยว) C (AC200V/380V สามเฟส) |
| ความเร็ว | ความเร็วคงที่ | เข็มขัด | โพลี (N-vinyl carbazole) |
| ความสามารถ | 200kg/set (เมื่อโหลดกระจายในแนวนอน) |
ในฐานะที่เป็นสินค้ารูปร่างของถุงโปรดเพิ่มขึ้นเป็น 40% ของข้อมูลความสามารถในการลดลง
ความเร็วเข็มขัด
| อัตราส่วน | ความเร็วไม่ | ความเร็วคงที่ 50/60 (Hz) (m/นาที | ความเร็วไม่ | ความเร็วแปรปรวน 50Hz (m/นาที) |
| 1/2040 | T1 | 2.6/3.0 | H1 | 1.0-2.6 |
| 1/2020 | T2 | 2.8/3.5 | H2 | 1.1-2.8 |
| 1/2000 | T3 | 3.5/4.2 | H3 | 1.4 ~ 3.5 |
| 1/90 | T4 | 4.0/6.7 | H4 | 1.6 ~ 4.0 |
| 1/80 | T5 | 4.4/5.4 | H5 | 1.8-4.4 |
| 1/70 | T6 | 4.9/5.8 | H6 | 2.0-4.9 |
| 1/60 | T7 | 5.8/7.0 | H7 | 2.3-5.8 |
| 1/50 | T8 | 7.0/8.4 | H8 | 2.8 ~ 7.0 |
| 1/45 | T9 | 7.7/9.3 | H9 | 3.1 ~ 7.7 |
| 1/40 | T10 | 8.6/10.5 | H10 | 3.4 ~ 8.6 |
| 1/30 | T11 | 11.6/14.0 | H11 | 4.7 ~ 11.6 |
| 1/25 | T12 | 14.0/16.8 | H12 | 5.6 ~ 14.0 |
| 1/20 | T13 | 17.5/21.0 | H13 | 7.0-17.5 |
| 1/15 | T14 | 23.3/28.0 | H14 | 9.3 ~ 23.3 |
| 1/10 | T15 | 35.0/41.9 | H15 | 14.0-35.0 |
| 1/5 | T16 | 70.0/83.8 | H16 | 28.0-70.1 |
การคำนวณความเร็วของความเร็วคงที่: หมุนความเร็ว 1500/1800rpm (50/60Hz), Driving Roller ф82.3, ประสิทธิภาพการขับขี่: 95%
การคำนวณความเร็วของความเร็วตัวแปร: หมุนความเร็ว 2000rpm (50; 60Hz), ลูกกลิ้งขับф82.3, ประสิทธิภาพการขับขี่: 95%
รูปวาด
เหตุใดการบำรุงรักษาลูกกลิ้งลำเลียงจึงส่งผลโดยตรงต่ออายุการใช้งานของระบบ ลูกกลิ้งลำเลียง ...
อ่านเพิ่มเติมอะไรทำให้ลูกกลิ้งลำเลียงมีงานหนักอย่างแท้จริง สายพานลำเลียงลูกกลิ้งสำหรับงานหนักไม่ได้ถูกกำหนดโด...
อ่านเพิ่มเติมสายพานลำเลียงแบบลูกกลิ้งคืออะไร และเหตุใดประเภทจึงมีความสำคัญ ลูกกลิ้งลำเลียง เป็นระบบข...
อ่านเพิ่มเติมเหตุใดลูกกลิ้งลำเลียงจึงยังคงเป็นแกนหลักของการจัดการวัสดุ ลูกกลิ้งลำเลียง ปรับปรุงประสิ...
อ่านเพิ่มเติมระบบสายพานลำเลียง ขนย้ายวัสดุหลายล้านตันทุกวันไปยังโรงงาน โกดัง ไซต์เหมืองแร่ และศูนย์กระจายส...
อ่านเพิ่มเติมนำงานฝีมือมาสู่อนาคต
No.60, Zhenhu North Road, เมือง Hudai, Binhu District, Wuxi 214100, จีน







